Les radiateurs infrarouges HEATSCOPE® produisent une chaleur à haute efficacité énergétique, fondée sur une technologie IR à ondes moyennes rapides jusqu’à une technologie IR à ondes longues efficace.
Les éléments chauffants en carbone HEATSCOPE® ne produisent en aucun cas des ondes courtes IR nocives pour les yeux, la peau et l’organisme. Conçus pour un usage privé et commercial, avec montage mural et au plafond dans des espaces intérieurs et extérieurs, les chauffages radiants au carbone HEATSCOPE® produisent de la chaleur en quelques secondes là où elle est nécessaire. Le radiateur radiant infrarouge permet de transporter la chaleur sur une distance allant jusqu’à 3 mètres, idéalement dans une
direction précise.
Avant d’installer l’appareil, veuillez lire attentivement ce manuel d’instructions. Suivez les informations indiquées afin d’éviter de vous mettre en danger, ainsi que votre famille, vos amis et vos connaissances. Si vous avez des questions, contactez le revendeur ou le fabricant.
Veuillez conserver ce manuel d’instructions dans un endroit sûr. Transmettez le manuel à tout propriétaire ultérieur de l’appareil HEATSCOPE® et assurez-vous que tout supplément reçu y soit joint.
Avant l’installation, assurez-vous que la tension de fonctionnement correspond à celle indiquée sur la plaque signalétique de l’appareil HEATSCOPE® !
Ce manuel d’instructions est destiné exclusivement aux produits standard disponibles. Les données techniques, les exigences d’installation et les dimensions des versions spéciales réalisées sur mesure peuvent différer.
Commande Manuelle

Installation du Support

Version 1

Version 2
Installation





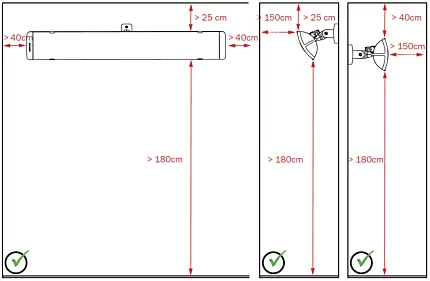
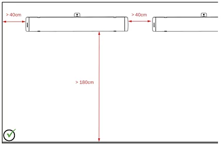
Distances Minimales











Déballage de l’Appareil / Emballage
Déballez soigneusement l’appareil et les accessoires. Lors de l’ouverture de l’emballage, n’utilisez pas d’objets tranchants susceptibles d’endommager l’appareil.
Ce produit est fourni dans un emballage respectueux de l’environnement. Tous les emballages HEATSCOPE® mis en circulation, directement ou par le biais du commerce, sont certifiés conformément au §6 de l’ordonnance allemande sur les emballages. Par conséquent, tous les emballages HEATSCOPE® peuvent être éliminés de manière respectueuse de l’environnement dans des conteneurs de collecte pour matériaux d’emballage. Toutes les réglementations légales doivent être respectées. Des informations complémentaires sont disponibles auprès du fabricant.
Informations d’entretien ! Important ! Nettoyez l’appareil avec un chiffon humide avant de l’utiliser pour la première fois. N’utilisez pas de produits de nettoyage contenant des substances alcalines telles que l’hydroxyde de sodium ou le savon, des tensioactifs ou des solvants/de l’alcool.
Instructions d’Installation
Les différentes options d’installation du chauffage radiant HEATSCOPE® sont présentées dans les schémas au début de ce manuel. Assurez-vous que le chauffage radiant est solidement fixé à la surface d’installation. En termes de résistance à la traction et au cisaillement, les fixations doivent pouvoir supporter au moins 3 fois le poids du chauffage radiant à installer (y compris
les accessoires). Lors de l’installation de l’appareil, utilisez les vis appropriées (fournies) pour la surface.
Veuillez garder à l’esprit qu’un seul support de fixation suffit pour fixer votre appareil en toute sécurité. Veuillez vous reporter aux dimensions minimales d’installation de l’appareil (cf. « espacements »).
Conformément à la directive d’écoconception UE 2015/1188 relative aux produits liés à l’énergie, l’utilisation d’un thermostat avec capteur d’ambiance, système de commande hebdomadaire et détection d’ouverture de fenêtre est obligatoire lors de l’installation d’un appareil de chauffage en intérieur. Cela est possible avec ce type HEATSCOPE®. En combinaison avec le thermostat DEVIreg™ Smart disponible en option, ce chauffage de cette série répond à la conformité de la directive d’éco
conception.
Les chauffages HEATSCOPE® sont essentiellement conçus pour une utilisation en extérieur et, dans la plupart des cas, ils sont finalement utilisés à l’extérieur. C’est pourquoi ils sont livrés réglés en usine sans aucun système de commande par thermostat conformément à la directive d’écoconception UE 2015/1188. Cela est cohérent, raisonnable et permet d’économiser des ressources précieuses. Dans de nombreux cas, un système de température / thermostat séparé conforme à la directive d’écoconception est déjà installé, et les chauffages doivent être intégrés à ce système. Dans ce cas, le client ou l’installateur mandaté est responsable du respect des normes UE de la directive d’écoconception.
Fonctionnement, Instructions d’Installation et Distances Minimales
Une fois l’appareil installé, vous pouvez l’utiliser pour la première fois.
Le HEATSCOPE® dispose de deux interrupteurs omnipolaires « ON/OFF ». Vous pouvez commander manuellement le chauffage radiant à l’aide de ces sélecteurs situés sur l’appareil lui-même.
L’appareil doit être raccordé à un dispositif différentiel résiduel et à un fusible ! Installez l’appareil dans tout espace intérieur ou extérieur. Le HEATSCOPE® est protégé contre les projections d’eau et la poussière. Il possède une classe de protection IP65 pour PURE et IP25 pour NEXT et PURE+.
ATTENTION : Le montage du chauffage au mur et au plafond, ainsi que dans les serres et vérandas, doit être réalisé de manière professionnelle et uniquement conformément aux règles de montage. Les distances de sécurité spécifiées sont des valeurs minimales et peuvent différer des réglementations locales en matière de construction et de sécurité incendie.
Les distances de sécurité ainsi que les réglementations locales en matière de construction et de sécurité incendie doivent être respectées à tout moment ; toute configuration d’installation indiquée de manière inappropriée doit toujours être évitée. Les configurations d’installation divergentes nécessitent l’approbation technique du fabricant. En cas de configuration d’installation divergente sans approbation du fabricant, un danger pour les personnes et l’environnement peut survenir. La garantie légale et commerciale expire pour
tous les chauffages qui ne sont pas installés conformément à ce manuel d’utilisation et d’installation !
D’autres espacements de protection peuvent être nécessaires conformément aux réglementations locales de sécurité incendie, par exemple pour une installation sur des surfaces combustibles.
Tous les câbles doivent être positionnés de manière à ne pouvoir entrer en contact avec la surface du chauffage radiant à aucun moment. Le chauffage radiant ne doit pas être installé directement sous une prise électrique. Les côtés du HEATSCOPE® doivent être à au moins 20 cm de toute prise électrique.
Mise hors Service / Élimination
Lorsque l’appareil atteint la fin de sa durée de vie, il doit être mis hors service par un spécialiste conformément aux réglementations applicables, et des mesures doivent être prises pour garantir qu’il ne puisse pas être remis en service.
L’appareil doit être éliminé de manière professionnelle et respectueuse de l’environnement. Les réglementations légales applicables doivent être respectées.